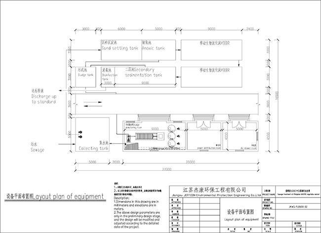
菲律宾 600CMD 综合污水处理工程
600CMD Integrated Sewage Treatment Project in the Philippines

![]() |
|
|
|
版权所有(C) 2016 All Rights Reserved.江苏杰康环保工程有限公司 联系人:陈先生 电 话:0510—87339296 传 真:0510—87339295 地 址:江苏省宜兴市高塍镇后杨路7号 E-Mali:ck@yxjkhb.com.cn |